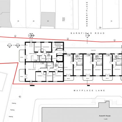
Barnfield Estate

Our design will transform a strip of leftover-space at the edge of the Barnfield Estate in Greenwich, and provide 24 new Council-funded affordable homes.

New landscaping and frontages will improve the experience of existing public spaces around the site.  The landscape design extends and blends with recent improvements in the wider estate.

The project was designed from the outset for efficient realisation as a volumetric modular build.  This method maximises construction quality, speed of delivery and site safety, and minimises on-site disruption and waste.

The design targets zero operational carbon with a full suite of measures, including a highly-insulated and airtight envelope, triple-glazed windows, air-source heat pumps, heat recovery ventilation and large photovoltaic array.

The project is part of the Greenwich Builds programme, which is rapidly delivering 1,750 much-needed new affordable homes across the borough.

  • Client:Royal Borough of Greenwich / Greenwich Build
  • Location:Plumstead, London
  • GIA:1,950m²
  • Status:Planning achieved February 2024
  • Consultants:Farrer Huxley, Design4Structures, TMS Consultants, Jomas Associates, Apex Acoustics, Efectis, Ingleton Wood
  • Contractor:Elkins Construction